• About Us
  • Residential
  • Commercial
  • Retirement Living
  • Contact Us
  • About Us
  • Residential
  • Commercial
  • Retirement Living
  • Contact Us

Nairne Residence

Location
Summit Road, Nairne
Project Status
Design and Documentation

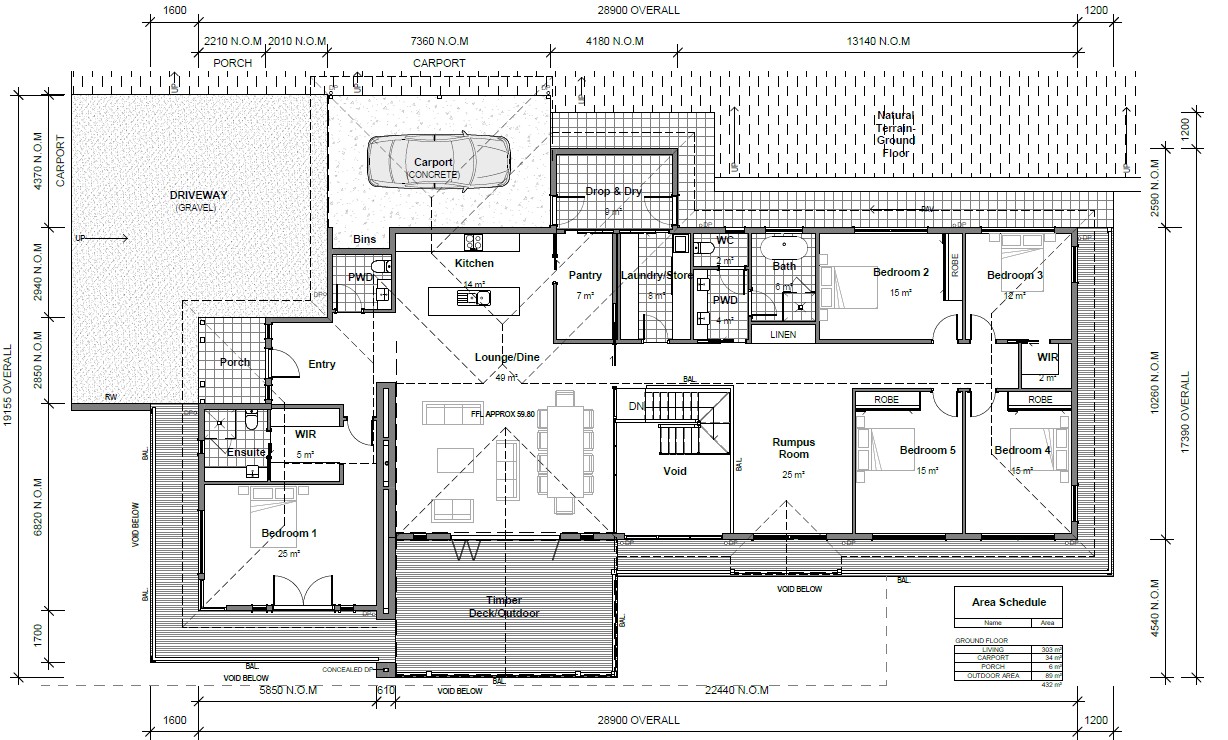
Our owner-builder client provided us a great description of how the busy family with 5 children functions with all the children at school, running around for extra curricular activities and even managing a self employed business - it was this understanding that established to the brief that enabled us to provide a house layout to address all the priorities of the family. The external form, driveway approach, multiple points of entry, surround deck to capture the views of a local valley, all create a dream home for this family. 

Also in the Adelaide Hills is the Woodside Residence and the Bridgewater Residence. In the Riverland, see Pelican Point Residence

Quick Links

  • Home
  • About
  • Residential
  • Commercial
  • Retirement Living
  • Contact Us

Contact Us

  • 458 Morphett Street, Adelaide SA 5000

  • cube@cubearchitects.com.au

  • T: (08) 8379 5222
    M: 0412 619 420

  • @cube_architects_adelaide

Downloads

  • The Architectural Process
  • Understanding Project Budgets
  • Retirement Villages Brochure
  • Quality Policy Statement
  • Safety Policy Statement
© Copyright 2026. All Right Reserved.