• About Us
  • Residential
  • Commercial
  • Retirement Living
  • Contact Us
  • About Us
  • Residential
  • Commercial
  • Retirement Living
  • Contact Us

Woodside Residence

Location
Woodside
Project Status
Under Construction

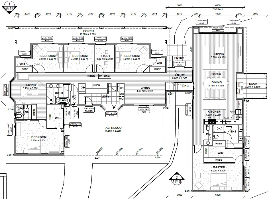
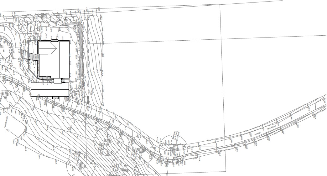
Our client had purchased a traditional farmhouse style residence in Woodside with a desire to remodel and extend the house to create a modern barn style home. Working closely with the client we ensured that the form, finishes, materials and layout of the home met and excelled their expectations. Cube utilised the existing wet area locations to mitigate underfloor plumbing costs. The new wing to the home works with the existing ground levels by introducing a small staircase within the new entrance foyer.


Other extension by Cube include Rose Park Residence and Port Elliot 

Quick Links

  • Home
  • About
  • Residential
  • Commercial
  • Retirement Living
  • Contact Us

Contact Us

  • 458 Morphett Street, Adelaide SA 5000

  • cube@cubearchitects.com.au

  • T: (08) 8379 5222
    M: 0412 619 420

  • @cube_architects_adelaide

Downloads

  • The Architectural Process
  • Understanding Project Budgets
  • Retirement Villages Brochure
  • Quality Policy Statement
  • Safety Policy Statement
© Copyright 2026. All Right Reserved.