• About Us
  • Residential
  • Commercial
  • Retirement Living
  • Contact Us
  • About Us
  • Residential
  • Commercial
  • Retirement Living
  • Contact Us

SDA Housing

Location
Various
Project Status
Planning Documentation

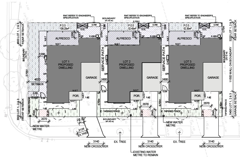
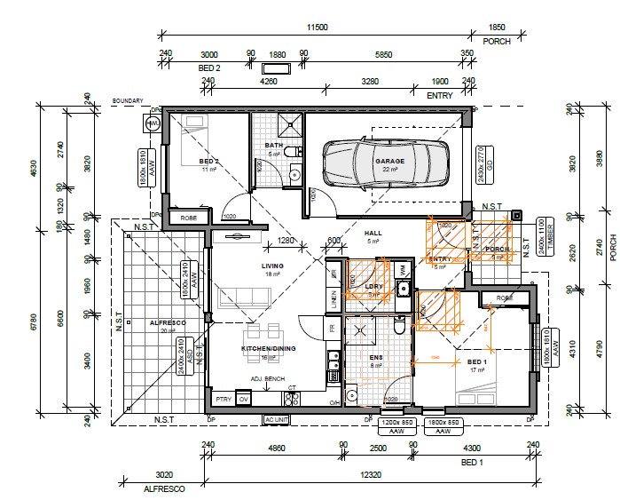
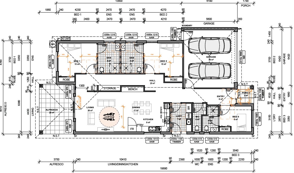
Cube was engaged by Unity Housing Company to design several NDIS Specialist Disability Accommodation (SDA) homes across several sites. Of the four categories of SDA housing the brief to Cube was for Robust and High Physical Support homes (the other two categories being Improved Liveability and Fully Accessible). Cube worked with the client and their consultants to produce innovative solutions on sites that had previously looked to be difficult to gain the desired yield due to the specific spatial requirements of SDA housing. 


Accessible units were also included in the SAHT Suburban projects and the Kilburn Apartments

Quick Links

  • Home
  • About
  • Residential
  • Commercial
  • Retirement Living
  • Contact Us

Contact Us

  • 458 Morphett Street, Adelaide SA 5000

  • cube@cubearchitects.com.au

  • T: (08) 8379 5222
    M: 0412 619 420

  • @cube_architects_adelaide

Downloads

  • The Architectural Process
  • Understanding Project Budgets
  • Retirement Villages Brochure
  • Quality Policy Statement
  • Safety Policy Statement
© Copyright 2026. All Right Reserved.