• About Us
  • Residential
  • Commercial
  • Retirement Living
  • Contact Us
  • About Us
  • Residential
  • Commercial
  • Retirement Living
  • Contact Us

Matthews Ave Housing

Location
Matthew Avenue, Seaton
Project Status
Under Construction

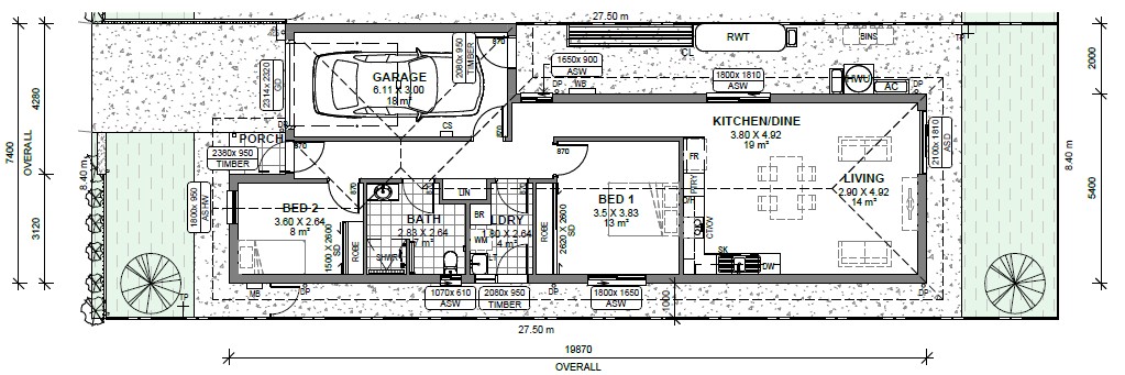
The Housing Trust engaged Cube to design and document to tender 5 two-bedroom single storey homes on a site that was intended for two-storey townhouses. Cube managed to successfully accommodate all the spatial requirements of the brief as well as the over-arching developer design encumbrances. The project is now nearing completion of construction. 

Quick Links

  • Home
  • About
  • Residential
  • Commercial
  • Retirement Living
  • Contact Us

Contact Us

  • 458 Morphett Street, Adelaide SA 5000

  • cube@cubearchitects.com.au

  • T: (08) 8379 5222
    M: 0412 619 420

  • @cube_architects_adelaide

Downloads

  • The Architectural Process
  • Understanding Project Budgets
  • Retirement Villages Brochure
  • Quality Policy Statement
  • Safety Policy Statement
© Copyright 2026. All Right Reserved.